Springe zum Hauptinhalt Springe zum Hauptmenü Springe zur SiteSearch

Durch Dick und Dünn

Am Anfang steht immer die Frage nach dem „richtigen“ System. Diese wurde von mir bereits in der GEB-Ausgabe 01-2019 in dem Beitrag „Der Teufel steckt im Detail“ ausführlich behandelt. Nachdem geprüft und entschieden ist, welches WDVS sich für das Projekt eignet und ob es auch den bauordnungsrechtlichen Voraussetzungen entspricht, schließt sich meist die Frage nach der optimalen Wandkonstruktion an.

Ob nun moderne schlanke Linien oder klassischer Landhausstil: Die neuralgischen Details unterscheiden sich dabei in der Regel technisch kaum voneinander und lassen sich dabei auf drei wesentliche Punkte reduzieren. Dazu zählen

  • die Anschlüsse zu anderen Bauteilen wie z. B. am Dach und im Bereich des Sockels,
  • die Öffnungen eines Gebäudes und
  • die Durchdringungen bzw. Anbauteile.

Der richtige Aufbau

Nun mag der eine oder andere Leser vielleicht denken: „Nicht schon wieder was über Wandkonstruktionen!“ Jedoch zeigt die tägliche Praxis, dass gerade hier die erste Falle lauert. Wir konstruieren häufig in traditioneller Weise und überlagern damit die drei technischen Ebenen der Gebäudehülle. Diese Ebenen sind

  • die Statik,
  • der Wärmeschutz und
  • die Installation.

Ein solches Vorgehen führt schnell in die Falle der konstruktiven Wärmebrücke und mündet damit meist in die wohl bekannten Baustellenlösungen. Diese sind dabei meist nur ein unzureichender Kompromiss und bergen langfristig gewisse Risiken für Bauschäden.

Wer in der Planungsphase systemherstellerunabhängig nach bauschadensfreien Details zur Ebenenführung inklusive physikalischer Bewertung und funktionierendem Feuchteschutz sucht, wird um den WDVS-Planungsatlas des Verbandes für Dämmsysteme, Putze und Mörtel (VDPM) nicht herumkommen – in diese Planungshilfe einen Blick hineinzuwerfen, lohnt sich immer ( www.wdvs-planungsatlas.de ). Bereits vor mehr als einem Jahr hat der Verband den Planungsatlas um weitere herstellerneutrale Detaillösungen ergänzt – unter anderem kamen viele weitere Sockeldetails hinzu. Aus diesem Grund – und auch weil in dem bereits erwähnten Fachartikel in GEB 1-2019 die Planungsgrundlagen für Sockel hinreichend erläutert worden sind – widmet sich dieser Beitrag den beiden verbleibenden Bereichen und startet mit dem Thema Fenster.

Fenster gemäß RAL-Montage: Was ist das genau?

In vielen Ausschreibungen wird häufig der Fenstereinbau und der zu erbringende WDVS-Anschluss mit dem Begriff der RAL-Montage als vermeintlich ordnungsgemäßem Anschluss definiert. Ohne inhaltliche Beschreibung klärt der Begriff „RAL-Montage“ jedoch nicht hinreichend, wie der Auftragnehmer die Anschlüsse genau auszuführen hat. Die Abkürzung RAL war ursprünglich die Kurzform für den „Reichsausschuss für Lieferbedingungen“ und steht heute für das „Deutsche Institut für Gütesicherung und Kennzeichnung“.

In der Regel zielt jedoch die Begrifflichkeit „RAL-Montage“ auf den Montageleitfaden der RAL-Gütegemeinschaft Fenster und Haustüren ab. Dazu ist anzumerken, dass die „gütegesicherte RAL-Montage“ nach den Bestimmungen der RAL Gütegemeinschaft Fenster und Haustüren nur angehörigen und/oder lizenzierten Betrieben, die vom Institut für Fenstertechnik Rosenheim überwacht werden, ausgeführt werden darf. Eine „RAL-Montage“ ist demnach für sich besehen keine Voraussetzung für eine ordnungsgemäße Leistung gemäß den allgemein anerkannten Regeln der Technik!

Die kritischen Bereiche: Laibung und Fensterbank

Am problematischsten sind die Fensteranschlussdetails in den beiden Bereichen Laibung und Fensterbank. Am besten ist es, man geht dabei in zwei Planungsschritten vor – zuerst klärt man den Anschluss der WDVS-Laibung an das Fenster, dann den Anschluss der Fensterbank an das WDVS. Schauen wir uns diese zwei Positionen nachstehend einmal genauer an.

Anschluss der WDVS-Laibung an das Fenster

Grundsätzlich ist der Laibungsbereich energetisch sicher auszubilden, sei es anhand spezieller Laibungsdämmungen oder durch den flächenbündigen Einbau der Fenster in die Mauerwerksebene. Dies dient nicht nur dazu, die Wärmebrücken zu minimieren, sondern trägt durch das Vermeiden von Kondensat an den inneren Laibungsflächen auch dazu bei, die Innenraumhygiene sicherzustellen, weil damit Feuchteschäden und Schimmelbildung vorgebeugt wird.

Für den weiteren Anschluss haben sich sogenannte Anputzleisten mit Gewebestreifen in der Praxis auf der Baustelle durchgesetzt. Dazu muss man wissen, dass für die Auswahl der passenden Leiste die Einbauposition des Fensters, die Fenstergröße, die Dämmstoffdicke und das gewählte WDVS-System zu berücksichtigen sind. Denn nicht jede Anputzleiste passt zu jeder Einbausituation ( Abb. 1 ).

Anschluss der Fensterbank an das WDVS

Üblicherweise werden bei Außenwandkonstruktionen mit WDVS gekantete Fensterbänke aus Metall gewählt. Immer beliebter sind jedoch auch Fensterbänke aus Natur- oder Betonwerkstein ( Abb. 2 ). Das erste Kriterium, das bei der Planung erfüllt werden muss, ist ein Mindestüberstand der Tropfkante bzw. der Wasserabreißnut bei Steinfensterbänken von 20 mm – empfehlenswert ist jedoch ein Abstand von 30 bis 50 mm.

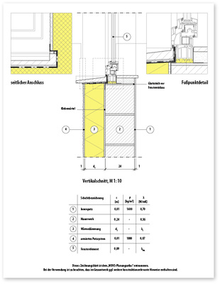
Nicht minder entscheidend ist die Länge der Fensterbank. Hier ist zu berücksichtigen, dass die Überdämmung des Fensterrahmens die Anforderungen der DIN 4108 Beiblatt 2 erfüllen muss. Demnach ist der Fensterrahmen einschließlich der Baukörperanschlussfuge um mindestens 30 mm zu überdämmen. Andernfalls ist für die Laibung das Erstellen eines Isothermenverlaufs Pflicht, um nachzuweisen und zu gewährleisten, dass innenseitig kein Kondensat ausfällt ( Abb. 3 ). Eine gängige Methode, Wärmebrücken im Bereich der Laibungen zu vermeiden, ist die Verlagerung des Fensters in die Dämmebene, was bei einer Sanierung jedoch nur in Verbindung mit der zeitgleichen Modernisierung der Fenster möglich ist.

Der Anschluss der Dämmplatten des WDVS an die Fensterbank ist schlagregensicher auszuführen. In der Regel verwendet man hierzu umlaufend vorkomprimierte Dichtungsbänder. Ebenso ist die Dämmung bis unter die Fensterbank zu führen bzw. eventuell entstehende Hohlstellen sind unbedingt auszuschäumen. Wer dies unterlässt, riskiert an Hohlstellen Kondensatbildung, was erhebliche Feuchteschäden nicht nur am WDVS, sondern auch im Innenbereich verursachen kann.

Werden an den Fenstern Rollladenführungsleisten angebracht, ist diesem Bereich ein besonderes Augenmerk zu widmen, da hier häufig die nötige Abdichtung nicht einem Gewerk alleine zugeordnet werden kann. Daher ist situationsbedingt zu prüfen, wie die Leistung zuverlässig ausgeführt werden kann.

Ein weiterer Punkt bei der Planung der Fensterbänke entfällt auf die Auswahl des Bordprofils, oftmals auch als Endkappen oder Endstücke bezeichnet. Mehrheitlich werden heute die kostengünstigen, starr aufgesetzten Bordprofile verwendet. Diese führen jedoch häufig zu Feuchte- und Rissschäden. Dies liegt daran, dass sich mit den starr aufgesetzten Bordstücken meist nicht die geforderte Schlagregendichtheit ohne zusätzliche Maßnahmen herstellen lässt, wodurch Feuchte in das System eindringen kann. Weiterhin lassen starr aufgesetzte Bordstücke auch keinen Dehnungsausgleich der Fensterbank bei thermischen Spannungen zu, was gleichfalls erhebliche Rissschäden an diesem Detailpunkt verursachen kann ( Abb. 4, 5 ).

Moderne Bordprofile vereinen die funktionale Schlagregendichtigkeit durch innen liegende Dichtlippen und den erforderlichen Dehnungsausgleich, sodass hier die optimale Funktionstauglichkeit, bei einem vertretbaren Kostenmehraufwand, dauerhaft sichergestellt werden kann.

Dachanschluss am Beispiel einer Attika

Bei der Attika kommt es beim Anschluss eines WDVS im Wesentlichen darauf an, die thermische Hülle nicht zu unterbrechen und diese über die Statikebene hin zum Gefälledach zu führen. Dabei ist oberseitig darauf zu achten, dass die Befestigung für die übliche Verblechung nicht zu unerwünschten Wärmebrücken führt und kein Wasser in die Konstruktion eindringen kann. Dafür haben sich formstabile Unterkonstruktionen, die auf dem oberseitigen Dämmstoff aufgesetzt in die Dichtungsebene integriert werden, bewährt. Die Verblechungen werden dann mittels systemkompatibler verdeckter Halteklammern fixiert. Diese Detaillösung stellt sicher, dass die thermische und statische Ebene sauber voneinander getrennt verlaufen und sich nicht gegenseitig negativ beeinflussen können.

Vorteile der Hochleistungsdämmstoffe für Planung und Architektur

Bleiben wir bei dem letzten Beispiel, der Attika. Hier ist der Übergang des WDVS zu einem Gefälledach ein immer wieder kontrovers diskutiertes Detail in der modernen Architektur. Die heutigen Anforderungen an die energetische Qualität der Gebäudehülle erfordern in Verbindung mit konventionellen Dämmstoffen sehr dicke Dämmschichten, die optisch am Baukörper meist nicht mehr die filigrane Wirkung erzeugen, die Architekten in der Regel zum Ziel haben. Daher sind für schlanke und betonende Gebäudekanten in diesem Bereich Hochleistungsdämmstoffe die erste Wahl.

Fällt hier die Wahl auf Hochleistungsdämmstoffe wie beispielsweise die Kooltherm K5 von Kingspan mit einem Lambda-Wert von bis zu 0,020 W/mK (Nennwert), können nahezu alle kritischen Bereiche für Wärmebrücken in der Gebäudehülle sicher geplant und ausgebildet werden. Auch ermöglichen Hochleistungsdämmstoffe schlanke Wandaufbauten bis hin zum Passivhausniveau. Wer dies bereits in der Planungsphase für den Neubau berücksichtigt, kann einen deutlichen Nutzflächen- und Wohnraumgewinn für sein Projekt erzielen. In der Sanierung vermeiden hingegen schlanke Dämmsysteme Streitigkeiten um Platzverhältnisse infolge ausufernder Fassadendicken.

Vorausschauende Planung verspricht Qualität im Detail

Abschließend sei noch darauf hingewiesen, dass die vorstehend beschriebenen Aspekte prinzipiell auch für Wandkonstruktionen mit vorgehängten hinterlüfteten Fassaden sowie für zweischalige Wandkonstruktionen gelten. Die neuralgischen Punkte sind hier nahezu identisch, weshalb die beschriebenen Grundsätze – in minimal abgewandelter Form der systemspezifischen Ansprüche – grundsätzlich analog angewendet werden können.

Eine langlebige, dauerhafte Fassade mit WDVS lässt sich mit konventionellen Dämmstoffen ebenso zuverlässig umsetzen wie mit Hochleistungs-Dämmsystemen – egal ob in der Sanierung oder im Neubau, und unabhängig vom energetischen Standard. Entscheidend für eine bauschadensfreie Umsetzung in hoher Qualität ist die vorausschauende Planung der angestrebten Wandkonstruktion bis ins letzte Detail. Wer sich dazu an den vorstehend beschriebenen Aspekten orientiert, ist auf dem richtigen Weg!

WDVS-Planungsatlas

Der Verband für Dämmsysteme, Putze und Mörtel e. V. (VDPM) bietet auf seiner Homepage mit dem WDVS-Planungsatlas ein vielseitiges Tool für die Planung von Anschlussdetails bei Außenwandkonstruktionen mit WDVS. Basierend auf Konstruktionsskizzen der AIBAU gGmbH, Aachen, wurden hierzu durch die Ingenieurgesellschaft Willems und Schild GmbH, Dortmund, die maßgeblichen Kenndaten relevanter Wärmebrückenanschlüsse bei Wärmedämm-Verbundsystemen ermittelt und die konstruktiven Besonderheiten der Anschlüsse als Unterstützung für die genaue Planung in detaillierten Zeichnungen aufgearbeitet. Die Sammlung von Konstruktionsdetails umfasst derzeit 139 Lösungen und wird permanent erweitert – zuletzt wurden 2018 weitere Varianten für Fenstersturz-Details ohne Geschossdeckeneinbindung integriert. Diese können – neben der Situation in Treppenräumen – genutzt werden, wenn im Attika- oder Traufbereich Fenster vorhanden sind. Hier lassen sich dann die Wärmebrückeneffekte aus dem Teilbereich „Dachanschluss“ und dem Teilbereich „Sturz“ addieren. Diese Ergänzung umfasst auch Fenstersturz-Versionen mit Rollladen- und Raffstorekasten. Der Service wird rege genutzt – das belegen die stetig anwachsenden Besuchszahlen. Es bedarf lediglich einer Registrierung unter www.wdvs-planungsatlas.de , und schon kann man entweder über die Konstruktionsauswahl oder über das Gebäudemodell in der Datenbank navigieren. Nach der Eingabe verschiedener Parameter (Dicke der Dämmschichten, Wärmeleitfähigkeiten) werden die thermischen Werte des Konstruktionsanschlusses ermittelt. Der User kann anschließend die Konstruktionsdarstellung, den Temperaturverlauf, Ausschreibungstexte und Konstruktionszeichnungen in verschiedenen Formaten herunterladen.

www.wdvs-planungsatlas.de

Kay Beyen

ist gelernter Maurer und Stuckateurmeister. Verschiedene Tätigkeiten in der Bauindustrie, unter anderem bei den Firmen Knauf (Systemberater) und Baumit (Produktmanagement und Anwendungstechnik). Seit Juli 2019 leitet er bei der Kingspan Insulation GmbH & Co. KG die Bereiche politische Kommunikation und Public Affairs. Öffentlich bestellter und vereidigter Sachverständiger für das Stuckateurhandwerk.