Springe zum Hauptinhalt Springe zum Hauptmenü Springe zur SiteSearch
KfW 40 Lüftungsanlage

Lüftung im Neubau

Auch wenn in vielen Regionen Deutschlands nicht genügend Wohnraum entsteht, um den Bedarf vor allem in großen und mittelgroßen Städten zu decken, bewegt sich der Hochbaubereich in Deutschland derzeit auf einem hohen Niveau: So wurden 2018 insgesamt 285 900 Wohnungen fertiggestellt, von denen ein großer Teil im Rahmen des KfW-Programms Energieeffizient Bauen (  www.kfw.de/153  ) gefördert werden.

Um die energetischen Anforderungen der EnEV und die Anforderungen der KfW im Förderprogramm Energieeffizient Bauen für die Lüftungsanlagen Standards KfW 55, KfW 40 bzw. KfW 40 Plus zu erreichen, ist der Einsatz eines Lüftungssystems ein probates Mittel. Dabei macht sich die günstige Bewertung einer ggf. vorhandenen Bedarfsführung, die den Anlagen-Luftwechsel verringert, bzw. einer Wärmerückgewinnung (WRG) in der EnEV-Bilanzierung des Wohngebäudes deutlich bemerkbar. Diesen Einfluss hat das IBEU Dresden e. V. (Informations- und Beratungsinstitut für Energieeinsparung und Umweltschutz) im Auftrag des Unternehmens Aereco untersucht und unterschiedliche Anlagen- und Dämmvarianten miteinander verglichen [1].

Untersuchte Dämmstandards und Anlagentechnik

Für die Studie wurde ein Mehrfamilienhaus mit 15 Wohneinheiten und einer Nutzfläche A N von 1344 m 2 angenommen. Der Primärenergiebedarf des Referenzgebäudes beträgt Q p, max  = 38,4 kWh/m 2 a. Die berechneten Varianten unterscheiden sich u. a. in der Qualität der Gebäudehülle:

  • EnEV-Referenz (H' T, REF = 0,394 W/m 2 K),
  • KfW 55 (H' T, REF  30 %) und
  • KfW 40 (H' T, REF  45 %).

Im ersten Fall wurde beispielsweise eine Außenwand mit 10 cm Polystyrolhartschaum und einem U-Wert von 0,28 W/m 2 K sowie Fenster mit einem U-Wert von 1,3 angenommen.

Für die Beheizung berücksichtigte die Untersuchung folgende Systeme:

  • Gas-Brennwertkessel (Gas),
  • Gas-Brennwertkessel in Kombination mit einer Solaranlage für die Warmwasserbereitung,
  • Holz-Pellet-Kessel,
  • Sole / Wasser-Wärmepumpe,
  • Zwei Anlagen mit Fernwärme aus einer KWK-Anlage (Primärenergiefaktor 0,7 bzw. 0,5).

Als dritter Baustein wurden vier unterschiedliche, bedarfsgeführte Lüftungssysteme festgelegt:

  • Abluftsystem,
  • Abluftsystem mit Abluftwärmenutzung für die Warmwasserbereitung, den Heizkreislauf oder für beides
  • Zu- und Abluftsystem mit WRG (wohnungsweise) und
  • dezentrale Lüftung mit WRG.

Bedarfsgeführte Lüftungssysteme

Weil die untersuchten Lüftungssysteme alle bedarfsgeführt sind, durfte in der Berechnung, die nach DIN V 4108-6 und DIN V 4701-10 erfolgte, eine verminderte Anlagenluftwechselrate von 0,35 h -1 angesetzt werden. Zum Vergleich wurde zusätzlich eine Variante ohne mechanisches Lüftungssystem, d. h. mit Fensterlüftung berechnet. Die Bedarfsführung reduziert sowohl die Lüftungswärmeverluste als auch den Anlagenstromverbrauch. Mit Hilfe der Sensoren, die je nach Anlagenkonfiguration auf die Feuchte, den CO 2 -Gehalt oder die Anwesenheit von Personen in den einzelnen Räumen reagieren, lässt sich außerdem ein verbesserter Wohnkomfort für die Bewohner gegenüber ungeregelten Anlagen erreichen.

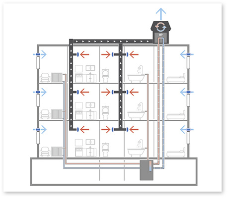
Beim betrachteten Abluftsystem sorgen stromlose feuchtegeführte Abluftelemente für die bedarfsgerechte Entlüftung der Ablufträume. Ein zentrales Lüftungsgerät, das in der Regel auf dem Dach des Mehrfamilienhauses installiert wird, stellt den notwendigen Unterdruck in der Hauptleitung bereit. Die Nachströmung frischer Luft erfolgt über feuchtegeführte Außenluftdurchlässe im Wohn- und Schlafbereich.

Die Funktionsweise des Abluftsystems mit Abluftwärmenutzung entspricht der oben beschriebenen. Der Unterschied besteht darin, dass ein Wärmeübertrager mittels Sole-Leitung oder direkt einer Wärmepumpe Energie aus dem Abluftvolumenstrom zuführt. Die Wärmepumpe stellt diese Energie für die Warmwasserbereitung oder den Heizkreislauf bereit.

Beim bedarfsgeführten Zu- und Abluftsystem mit WRG übernimmt ein zentrales Wand- oder Decken-Lüftungsgerät den Luftaustausch. Auch hier werden die ausbalancierten Luftmengen über Messsensoren geregelt. Pro Raum wird dafür auf der Zuluftseite ein CO 2 -Sensor und auf der Abluftseite ein Feuchte-Sensor installiert.

Dezentrale Lüftungsgeräte mit WRG, häufig als Push-&-Pull-Geräte bezeichnet, bewirken einen Luftaustausch innerhalb von zwei Räumen im Wechselbetrieb. Entsprechend wird die Belüftung einer Wohneinheit mit dezentralen Lüftern ausgestattet. Abluftseitig werden Einzelraumlüfter eingesetzt. Bei diesen Anlagen ist zu beachten, dass der Anteil der Ablufträume in der WRG-Bilanz abgezogen werden muss.

Parameter für den EnEV-Nachweis

Im Nachweis nach EnEV werden Lüftungssysteme mit folgenden Parametern berücksichtigt:

  • Anlagenluftwechsel: Bei bedarfsgeführten Lüftungssystemen beträgt er 0,35 h -1 (statt 0,40 h -1 mit einem ungeregelten Lüftungssystem bzw. 0,6 h -1 ohne Lüftungssystem).
  • Ventilatorleistung: Für die volumenstrombezogene Ventilatorleistung können Herstellerwerte ausgewählt werden. Sie sind in der Regel deutlich geringer als die vorgegebenen Standardwerte.
  • Wärmerückgewinnung (falls vorhanden): Die Wärmebereitstellung des Wärmeübertragers beträgt z. B. beim untersuchten Lüftungsgerät mit WRG für das Zu- und Abluftsystem 93 Prozent.
  • Abluftwärmenutzung: Um Abluftsysteme mit Abluftwärmenutzung zu berechnen, sind weitere Werte anzugeben, nämlich zur Anlagentechnik, zu Deckungsbeiträgen der Heizung und zur bereitgestellten Wärme. Für die Studie wurde der Leitfaden von Aereco [3] genutzt, um das System abzubilden.

Zwei Beispiele für die untersuchten Systeme

Wie bewertet der Gesetzgeber die unterschiedlichen Lüftungssysteme? Aus der Untersuchung ergaben sich zahlreiche Erkenntnisse und Hinweise für die Auswahl des geeigneten Systems. Entscheidend ist, ob der Bauherr mit möglichst geringen Investitionskosten nur Feuchteschäden vorbeugen möchte oder ob das Projekt als KfW-40-Plus-Objekt vermarktet wird, sodass nur Luft-Luft-Zu- und Abluftsysteme mit WRG zugelassen sind. Zwei Fallbeispiele werden hier vorgestellt.

Gas-Brennwertkessel mit Solarthermie

Beim Fallbeispiel mit Gas-Brennwertkessel und Solarthermie-Anlage ist der Einsatz eines Lüftungssystems zwingend erforderlich um die EnEV-Anforderungen zu erfüllen ( Abb. 4 ).

Begnügt sich der Bauherr mit einer Dämmung auf EnEV-Standard, ist ein Lüftungssystem mit WRG zwingend erforderlich. Erst durch eine Verbesserung der Gebäudehülle können mit einem bedarfsgeführten Abluftsystem ohne WRG die Anforderungen des Gesetzgebers erfüllt werden.

Ganz ohne ventilatorgestützte Lüftung lassen sich diese Vorgaben ebenso wenig erreichen wie mit Einzelraumlüftern, die nach DIN 18017-3 für fensterlose Räume eingesetzt werden. Letztere sieht der Gesetzgeber nicht als raumlufttechnische Anlage an, deshalb sind sie wie eine Fensterlüftung anzusetzen [4].

Planer und Bauherren haben also zwei Möglichkeiten, den Anforderungen gerecht zu werden, nämlich mit einer Standarddämmung in Kombination mit einem Lüftungssystem mit WRG, oder durch verbesserte Dämmung und ein bedarfsgeführtes Abluftsystem.

Je nach Auswahl ergeben sich unterschiedliche Vor- und Nachteile. Investitionskosten und Montageaufwand sind für ein Abluftsystem deutlich geringer als für eine Lüftungsanlage mit WRG. Sowohl der Primärenergie- als auch der Endenergiebedarf beider Varianten sind aber in etwa gleich hoch ( Abb. 3 ).

Ob das Lüftungssystem mit oder ohne WRG ausgeführt wird, macht also bei den Energiekosten so gut wie keinen Unterschied. Im ersten Fall ist der Heizwärmebedarf geringer und der Hilfsstrombedarf höher. Für eine 100-m 2 -Wohnung ergeben sich Kosten, die zwischen 247 und 274 Euro/a liegen  1) . Im zweiten Fall, in dem der Heizstrombedarf höher und der Hilfsstrombedarf niedriger ist, wurden Kosten in Höhe von 258 Euro/a errechnet. Erst der Einsatz eines Abluftsystems mit Abluftwärmenutzung führt zu einer deutlichen Senkung des Primärenergiebedarfs. Damit sind Werte möglich, die 25 % unter dem Referenzwert liegen bzw. 35 % bei einer Dämmung mit H' T, REF  30 % (KfW 55).

Um KfW-55- oder KfW-40-Lüftungsanlage-Standard zu erreichen, ist außer einer deutlich verbesserten Dämmung der gleichzeitige Einsatz eines Lüftungssystems mit WRG erforderlich.

Anschluss der Heizung an das Fernwärmenetz

Beim zweiten Beispiel handelt es sich um ein fiktives, städtisches Objekt mit Fernwärmeanschluss, für das ein Primärenergiefaktor von 0,5 angenommen wird. Die Berechnungsergebnisse zeigen, dass sich aufgrund des günstigen Primärenergiefaktors die energetischen Anforderungen mit der Standarddämmung und jedem Lüftungssystem erfüllen lassen ( Abb. 5 ).

Selbst der Verzicht auf eine mechanische Lüftung ist unter diesen Randbedingungen zulässig. Es stellt sich allerdings die Frage, ob es bei den erreichten Dämmstandards sinnvoll ist, die Lüftungsverantwortung dauerhaft den Nutzern aufzubürden.

Bemerkenswert ist der geringere Unterschied zwischen den Lüftungssystemen mit dem höchsten und dem niedrigsten Primärenergiebedarf. Während diese Differenz bei der Variante mit Gas-Brennwertkessel und Standard-EnEV-Dämmung 10 kWh/m 2 a beträgt, sind es hier weniger als 6 kWh/m 2 a: Beim bedarfsgeführten Abluftsystem wurde ein Primärenergiebedarf von 29,5 kWh/m 2 a berechnet, beim bedarfsgeführten Zu- und Abluftsystem mit WRG sind es 23,8 kWh/m 2 a.

Die berechneten energetischen Kosten belaufen sich bei der Nutzung eines Abluftsystems auf 5,76 Euro/m 2 a, für ein Abluftsystem mit Abluftwärmenutzung vom Typ Aereco Eco+ auf 4,24 Euro/m 2 a.

Für zahlreiche Fernwärmenetze werden Primärenergiefaktoren von 0,2 oder weniger ausgewiesen, sodass sich noch deutlich niedrigere Primärenergiewerte ergeben. Dabei sollte nicht unbeachtet bleiben, dass der Endenergiebedarf nicht immer mit dem Primärenergiebedarf korreliert. In Objekten mit Fernwärmeanschluss sind die Heizkostenrechnungen für die Nutzer oft höher als bei vergleichbaren Objekten mit Gas-Brennwertkessel.

Liegt beispielsweise der Endenergiebedarf für ein Objekt mit Fernwärmeanschluss, bedarfsgeführtem Abluftsystem und Dämmung für KfW-55-Standard bei 45,3 kWh/m 2 a, ergibt das Energiekosten von 483 Euro/a für eine 100-m 2 -Wohnung. Wird dasselbe Objekt mit Gas-Brennwertkessel und Solarthermie berechnet, verringert sich der Endenergiebedarf für die 100-m 2 -Wohnung auf 31,9 kWh/m 2 a und die Energiekosten auf 258 Euro/a 1) .

Fazit

Der Einsatz eines Lüftungssystems ermöglicht oft, die Anforderungen des Gesetzgebers an den Gebäudeprimärenergiebedarf zu erreichen oder deutlich zu unterschreiten. In vielen Fällen stellt sich bei Heizsystemen mit günstiger Primärenergie-Bilanz (Fernwärme, Holz, etc.) die Frage, ob eine Dämmung mit besserem U-Wert gewählt werden soll oder ein Lüftungssystem. Weil es bei der Dämmung mit zunehmendem Dämmstandard immer aufwendiger wird, eine wesentliche energetische Verbesserung durch die Zusatzdämmung zu erreichen, ist die Investition in ein effizientes Lüftungssystem häufig die preisgünstigere Lösung. Für ein bedarfsgeführtes Abluftsystem z. B. betragen die Kosten pro Wohneinheit inkl. Montage im Geschosswohnungsbau ca. 2500 Euro zzgl. MwSt.

Für Bauherren oder Projektentwickler bieten nutzerunabhängige bedarfsgeführte Lüftungssysteme einen weiteren wesentlichen Vorteil: Dadurch, dass mit der permanenten Messung einer bestimmten Führungsgröße – in der Regel der relativen Raumluftfeuchte – kontinuierlich der Bedarf erfasst wird, können Feuchteschäden durch mangelnde Lüftung mit hoher Wahrscheinlichkeit ausgeschlossen werden.

Weil die unterschiedlichen Primärenergiefaktoren der Heizsysteme ebenso wie die Dämmmaßnahmen sowohl den Primär- als auch den Endenergiebedarf eines Objekts beeinflussen, sind Pauschalaussagen über die Auswirkungen der Kombination dieser drei Bausteine (Dämmung, Heizung, Lüftung) nicht möglich. Die Kombination des ausgewählten Lüftungssystems mit diesen Parametern sollte deshalb immer objektspezifisch genau betrachtet werden.

[1] „Energetische Bilanzierung der Aereco-Lüftungssysteme nach Energieeinsparverordnung 2014 (Anforderungen ab 01.01.2016)“ – Dipl.-Ing. Wolfram Helm, IBEU Dresden e. V. Die Studie ist auf Anfrage bei Aereco erhältlich.

[2] Statistisches Bundesamt DESTATIS – Pressemitteilung Nr. 201 vom 29. Mai 2019

[3] Aereco TI-EFN-01: Anrechenbarkeit Aereco gemäß EnEV 2016, Berechnungssoftware

[4] Fachkommission Bautechnik der Bauministerkonferenz; Auslegungsfragen zur EnEV – Teil 20, www.bit.ly/geb1639

Fuߟnoten

1) Angesetzte Energiekosten pro kWh: Erdgas: 0,07 Euro, Fernwärme: 0,10 Euro, WP-Strom: 0,25 Euro, Hilfsstrom: 0,28 Euro

Informationen zur Studie

Aereco bietet neben seinen Abluftsystemen mit oder ohne Abluftwärmenutzung auch Zu- und Abluftsysteme mit Wärmerückgewinnung (WRG) sowie dezentrale Lüftungsgeräte mit WRG an. Allen gemeinsam ist die mechanische feuchtegeführte Lüftung. Um sie mit Blick auf den Primär- und den Endenergiebedarf sowie die Energiekosten zu bewerten, erhielt das Energieberatungsinstitut IBEU den Auftrag für eine energetische Bilanzierung nach EnEV 2016, bei der die Lüftungssysteme mit unterschiedlichen Dämm- und Heiztechniken kombiniert wurden. Die Untersuchung soll dabei helfen, die Wirkung der drei Bausteine Lüftung, Heizung und Dämmung auf die energetische Performance eines Gebäudes besser darzustellen. Die umfassende Untersuchung kann unter info@aereco.de angefordert werden. Ein Flyer über die energetische Bilanzierung der Aereco Lüftungssysteme steht unter www.bit.ly/geb1644  .

Jean-Benoit Schüwer

ist Marketingleiter bei der Aereco GmbH. Das Unternehmen, das 1984 die stromlose feuchtegeführte Lüftung erfand, bietet bedarfsgeführte Lüftungslösungen im Wohnungsbau.

www.aereco.de

Lesen Sie auch: Deckungsbeiträge richtig berechnen