Springe zum Hauptinhalt Springe zum Hauptmenü Springe zur SiteSearch
Building Information Modeling

Ganzheitlich planen

Nimmt man die Effizienz von Prozessabläufen und den Grad der Automatisierung des Fahrzeug-, Maschinen- oder Anlagenbaus zum Vergleich, wird eines deutlich: der Baubereich hinkt um Jahre hinterher. Stichworte wie Prozessmanagement, Simulation oder Just in Time sind vielfach noch Fremdworte. Building Information Modeling (BIM), was übersetzt etwa „Bauwerksdaten-Modellierung“ bedeutet, bietet der Baubranche eine Chance, technologisch mit anderen Branchen gleichzuziehen.

BIM ist derzeit das wichtigste Bau-Trendthema, das die Planung und Ausführung in den nächsten Jahren nachhaltig verändern wird. Der Begriff steht, technisch gesehen, für eine durchgängige Inte­gra­tion planungs-, ausführungs- und nutzungsrelevanter Bauwerksdaten in einer zentralen Datenbank. Als Idee steckt dahinter die Betrachtung des gesamten Lebenszyklus eines Produktes – von der Konzeption, über die Konstruktion, Fertigung und Wartung bis zur Entsorgung oder Wiederverwertung. Insbesondere in der Industrie werden Produkte schon seit vielen Jahren in diesem Sinne „ganzheitlich“ geplant. Hier hat sich der Begriff des Product Lifecycle Management (PLM, übersetzt: Produktlebenszyklus-Management) etabliert. Darunter wird jene Prozesskette verstanden, die ein Produkt über seinen gesamten Lebenszyklus hinweg begleitet.

Was ist und was kann BIM?

Auch bei Bauwerken werden – vom Entwurf über die Planung, den Bau und die Nutzung bis zum Rückbau – eine Fülle geometrischer und alphanumerischer Daten erzeugt. Damit sie sich effizient verwalten, dokumentieren, archivieren und zwischen den Projektbeteiligten verlustfrei austauschen lassen, bemüht sich die Branche schon seit vielen Jahren um einen gemeinsamen Standard. Mit BIM und den objekt­orien­tier­ten Basisdatenmodellen IFC (Industry Foundation Classes von BuildingSmart International) für den Austausch von BIM-Daten wurde endlich eine gemeinsame Basis geschaffen.

Der Kern von BIM ist ein zentrales, digitales Gebäudedaten-Modell, das sowohl Geometriedaten als auch Objekteigenschaften wie Materialien, Mengen, Kosten und Termine (sogenannte Attribute) enthält und im Projektverlauf immer weiter verfeinert wird. Alle Planer und ausführenden Betriebe – so das Ideal­bild – greifen darauf zu und vervollständigen es sukzessive. Auf diese Weise entsteht eine umfassende Informationsgrundlage für die Planung, Realisierung und vor allem für die zeitlich längste Phase – die ­Gebäude­nut­zung [1], [2], [3].

Doch die Realität sieht anders aus: Pläne werden heute größtenteils noch immer zeichnungsorientiert erstellt, Bauwerksdaten aufgrund von Schnittstellenproblemen von den Projektbeteiligten mehrfach eingegeben, Geometrie-, Objekt- und Berechnungsdaten getrennt gehalten, Änderungen nicht in allen Plänen und Gewerken konsequent nachvollzogen und anderes mehr. Mit BIM lässt sich das vermeiden, die Datenhaltung redundanz- und damit fehlerfreier gestalten, die Produktivität steigern, Arbeitsabläufe effizienter machen und letztlich die Qualität der Planung und Ausführung verbessern. Gebäudedaten können parallel bearbeitet werden – sowohl von verschiedenen Standorten aus als auch von einer großen Anzahl von Bearbeitern (Abb. 6).

Bei konsequentem BIM-Einsatz prognostizieren Anbieter von BIM-Software im Vergleich zur konventionellen Arbeitsweise eine Zeit- und Kosteneinsparung zwischen 10 und 30 %. Wird das dreidimensionale BIM-Datenmodell um die vierte Dimension „Zeit“ erweitert, kann der geplante Bauablauf visualisiert werden. Damit lassen sich gewerkübergreifend geometrische Konflikte aufdecken oder Baustellen-, Montage- und Logistikabläufe opti­mieren. Die 5D-Simulation berücksichtigt neben dem 3D-Gebäudemodell und der Zeit auch Mengen, Baukosten und Ressourcen, wie etwa Baustoffe, Maschinen oder Personal. Damit können der Bau-, Montage- und Installationsprozess vorab simuliert, Kolli­sio­nen und ­Probleme frühzeitig erkannt, Abläufe und Ter­mine präziser vorhergesagt werden und anderes mehr. Auch 6D-BIM gibt es schon: hier werden zusätzlich Lebens­zyklus­as­pekte wie die spätere Gebäudebewirtschaftung, der Abriss sowie Entsorgung und Materialwiederverwertung berücksichtigt.

Wo wird BIM bereits eingesetzt?

BIM-kompatible Planungswerkzeuge werden mittlerweile von vielen Softwareherstellern für die Architektur-, Tragwerks- oder TGA-Planung angeboten. Die dabei verwendeten Begriffe unterscheiden sich jedoch ebenso von Hersteller zu Hersteller, wie die Strategien zur praktischen Umsetzung von BIM: Während BIM-Initiator Autodesk ausschließlich diesen Begriff verwendet [4], spricht man beispielsweise bei ­Nemetschek oder Graphisoft vom „Virtuellen Gebäudemodell“, meint aber letztlich das Gleiche.

Ähnliche Begriffe und Argumente wurden schon vor rund 20 Jahren propagiert – im Zusammenhang mit dem damals sogenannten „zentralen 3D-Gebäudemodell“. Gescheitert ist es unter anderem daran, dass 3D eine Einbahnstraße war: wurde der 2D-Plan aus dem 3D-Modell generiert, gab es kein Zurück. Das hatte zur Folge, dass kleinere, praktischerweise im 2D-Plan ausgeführte Änderungen nicht im 3D-Modell übernommen wurden und es so zu Daten­inkonsis­ten­zen kam.

Das ist bei BIM anders: Gleichgültig, ob man innerhalb eines Programms im 2D-Plan, im 3D-Modell, in der Bauteilliste oder in der Visualisierung arbeitet – die Informationen werden in jeder Darstellung mitgeführt und bleiben konsistent. Jede dieser Darstellungen ist nämlich nur eine „Sicht“ durch einen bestimmten Informationsfilter auf das 3D-Datenmodell. Bauteile „wissen“, in welcher Beziehung sie zu anderen Objekten stehen und verhalten sich bei Änderungen auto­ma­tisch richtig.

Neu und besser an BIM ist auch der umfassende Ansatz und die mittlerweile breite Durchdringung aller Leistungsphasen, Baubereiche und Planungsdisziplinen: BIM hat sowohl im Hoch- und Tiefbau Fuß gefasst als auch im Massiv-, Fertigteil-, Stahl- oder Holzbau. Programme für die Kostenplanung und -steuerung nutzen BIM-Daten ebenso wie Software für bauphysikalische Untersuchungen, die statische oder energetische Gebäudeoptimierung, die Haustechnik- oder die Bauablaufplanung (Abb. 3 und 4). Die modell­orien­tierte Planung befördert ferner die Visuali­sie­rung, die Präsentation innerhalb virtueller oder erweiterter Reali­täten (Virtual Reality, Aug­mented Reality) sowie die dreidimensionale Ausgabe über 3D-Drucker.

Vorteile für Gebäudeenergieberater

Gerade die energetische Betrachtung von Gebäuden mit ihrem hohen Berechnungsaufwand und ihrer engen Verzahnung mit anderen Gewerken ist prädesti­niert für den BIM-Einsatz. Die Vorzüge eines zentra­len Gebäude-Datenmodells bei der Gebäude­kon­zep­tion, der Berechnung und Planung von Gebäudebauteilen oder haustechnischen Anlagen liegen auf der Hand: Sind alle relevanten Bauteilinformationen im digitalen Modell enthalten, lassen sich Berechnungen und Auswertungen rationalisieren. EnEV- und DIN 18599-Nachweise, bauphysikalische, thermische, energetische, lüftungs-, licht- oder schalltechnische Simu­la­tio­nen sowie Heiz- und Kühllastberechnungen können mit geringerem Eingabeaufwand realisiert werden. Tragwerk und Haustechnik können einfacher auf mögliche Kollisionen überprüft und optimiert werden. Darüber hinaus lassen sich Gebäude und haustechnische Anlagen einfacher dokumentieren und an Gebäudebewirtschaftungs-Systeme (CAFM) für die Wartungs- und Serviceplanung übergeben.

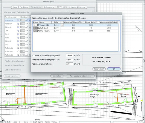
Deutlich werden BIM-Vorteile insbesondere im Vergleich mit bisherigen Arbeitsweisen: Wird beispielsweise eine Heizleitung im konventionellen 2D-Plan versetzt, kann das eine Bearbeitung aller Grundrisse, Ansichten, Schnitte, Deckenuntersichten etc. nach sich ziehen. BIM führt jede Änderung auto­ma­tisch im 3D-Modell, in allen Plänen, Stücklisten, Mengen und Massen automatisch nach. Das gilt ebenso bei Bauteiländerungen, zum Beispiel im Hinblick auf Material, Schichtaufbau oder Dimension (Abb. 5). Auch hier passen sich U-Werte und alle angegliederten Berechnungen automatisch an.

Noch ist die Mehrheit der Planer skeptisch

Angesichts dieser und weiterer Vorteile sollte sich die BIM-Technologie bereits auf breiter Basis durchgesetzt haben. Doch die Mehrheit der Planer (und ein Teil der Softwareanbieter) steht der neuen Arbeitsweise aus unterschiedlichen Gründen noch skeptisch gegenüber: Neben dem erhöhten Eingabeaufwand werden vor allem die im Baubereich üblichen arbeitsteiligen Prozesse und die damit zusammenhängende Vielzahl beteiligter Planungswerkzeuge als Gegen­argu­ment genannt. Auch serielle, streng nacheinander ablaufende Planungsabläufe sind ein Hemmschuh: Häufig lassen sich noch keine präzisen Aussagen über die Ener­gie­effi­zienz eines Gebäudeentwurfs treffen, weil elementare Informationen noch nicht feststehen. Beispielsweise lässt sich die Haustechnik noch nicht in das BIM-Modell eingeben, weil Architekt und Statiker noch daran feilen, weil Berechnungsdaten fehlen oder das Heizungs-/Kühlungskonzept noch nicht feststeht. Da mehrere Büros und mehrere, auch nicht BIM-konforme Programme an der Planung beteiligt sind, kommt es praktisch immer zu ­Dateninkonsistenzen.

Während einige Hersteller ihre Software konsequent an BIM ausrichten, kombinieren andere pragmatisch die konventionelle 2D- mit einer modell­orien­tier­ten Arbeitsweise. Doch der Markt ist in Bewegung und immer mehr CAD-Programme werden für die IFC-Schnittstelle zertifiziert, um BIM-Daten verlustfrei übertragen zu können (siehe http://www.buildingsmart-tech.org ). Neu ist auch das BIM Collaboration Format (BCF), ein Austauschstandard, mit dem die interaktive Projekt-Kommunikation zwischen den Anwendern verschiedener OpenBIMLösun­gen (siehe Glossar) und verschiedener Gewerke erleichtert wird. An einer effizienteren Übergabe des Gebäudemodells aus Archi­tek­tur- oder TGA-CAD an thermische Berechnungsprogramme wird derzeit gearbeitet.

BIM verändert Planungsprozesse

Building Information Modeling fordert Planern neue Arbeits- und Denkweisen ab, verändert aber auch Planungsprozesse und -strukturen: Während beispielsweise die Vor- und Entwurfsplanung, in der das BIM-Modell hauptsächlich generiert wird, ein stärkeres Gewicht bekommen, vermindert sich (zumindest theoretisch) der Aufwand für die Genehmigungs-, Ausführungs- und Fachplanung, da vieles automatisch abgeleitet werden kann [5].

Schon in früher Projektphase muss in der Regel der Architekt/Tragwerksplaner also viel Zeit in das 3D-Modell investieren, ohne unmittelbar davon profitieren zu können (Abb. 8 bis 10). Aufbau und Pflege eines BIM-Datenmodells sind erheblich aufwendiger als bei der zeichnungsorientierten Arbeitsweise. Zudem setzt das BIM-Modell mehr Informationen voraus, etwa über Bauteilaufbau, Materialien und Oberflächen, die zum Planungszeitpunkt häufig noch nicht feststehen. Diese fehlenden Informationen muss der Planer vom Bauherren und den Projektbeteiligten einfordern, was nicht immer einfach ist.

Darüber hinaus setzt die Arbeit mit der BIM-Software eine enge gewerk- und disziplinübergreifende Zusammenarbeit voraus, denn jede Aktion hat Auswirkungen auf die Arbeit Anderer. Deshalb müssen Absprachen und Vorgaben eingehalten und Arbeitsschritte abgestimmt werden. Das betrifft insbesondere die Struktur des Modells, die durchgängig und einheitlich sein muss.

Eine Herausforderung ist auch der Datenumfang, die Dateigröße und die Aktualität der Daten. Insbesondere Großprojekte bleiben nur dann bearbeitbar, wenn die Daten gewerk- und fachbereichsweise unterteilt werden, datentechnisch aber vernetzt bleiben. Ein Umdenken erfordert auch die Pro­jekt­kommu­ni­ka­tion, die nicht nur im Rahmen festgelegter Besprechungstermine stattfinden kann, sondern einen kontinuierlichen Austausch aller Projektbeteiligten über die gesamte Planungsphase erfordert.

Ohne eine koordinierende Schnittstelle, einen „Building Information Manager“, funktioniert gewerkübergreifendes BIM nicht. Er sorgt dafür, dass das gemeinsame Datenmodell aktuell, konsistent und übersichtlich bleibt, alle Planungsbeteiligten vereinbarte Standards einhalten (zum Beispiel Bauteil-, Layer-, Symbol-, Referenzstruktur, Schnittstelleneinstellungen) und das Modell für alle online ­zugänglich ist.

BIM hat auch berufspolitische Dimensionen: Zum einen berücksichtigt die aktuelle HOAI den erhöhten Planungsaufwand, respektive die durch BIM veränderten Leistungsphasen-Anteile nicht. Zum anderen bekommen Planungsleistungen aus einer Hand eine neue Bedeutung, da die komplette Architektur-, Statik- und Haustechnikplanung derzeit am besten in einem Datenmodell eines Softwareherstellers abgebildet werden kann. Größere Büros sind hier klar im Vorteil, kleinere müssen sich für neue Formen der Zusammenarbeit öffnen [5], [6].

Fazit: Mehr als nur ein Programmwechsel

BIM und adäquate Planungsmethoden werden von der Softwarebranche als Lösung vieler Probleme angepriesen. BIM funktioniert derzeit jedoch nur innerhalb einer Produktreihe eines Softwareherstellers reibungslos. Sobald Daten zwischen CAD- und Berechnungsprogrammen unterschiedlicher Hersteller ausgetauscht werden müssen, hakt es häufig. An der OpenBIM-Idee – einem zentralen, digitalen Bauwerksmodell für alle Gewerke, kommt man dennoch heute nicht mehr vorbei, will man alle Möglichkeiten computergestützter Planung ausschöpfen. Zugleich bietet BIM die Chance, aus der Sackgasse ineffizienter Datenaustauschmechanismen und Planungsabläufe auszubrechen. Wer von der neuen Arbeitsweise profitieren will, muss jedoch bereit sein, Zeit und Geld in die Einarbeitung (je nach CAD-Erfahrung mehrere Wochen und Monate), teilweise auch in neue Planungswerkzeuge und entsprechende Schulungen zu investieren. BIM ist weit mehr, als nur der Umstieg von einem Programm auf das andere – und der ist schon aufwendig genug.

Literatur/Quellen (Auswahl ohne Anspruch auf Vollständigkeit)

[1] Günthner, W./Borrmann, A.: Digitale Baustelle – innovativer Planer, effi­zien­te Ausführen, Werkzeuge und Methoden für das 21. Jahrhundert, Springer, Heidelberg 2011

[2] Smith, D.K./Tardif, M.: Building Information Modeling: A Strategic Implementation Guide for Architects, Engineers, Constructors, and Real Estate Asset Managers, Wiley & Sons, Hoboken 2009

[3] Jernigan, F.: Big BIM little BIM, The practical approach to Building Information Modeling, 4Site Press, Salisbury 2008

[4] Autodesk: BIM – Building Information Modeling. Schneller, besser und kostengünstiger planen, bauen und verwalten, Autodesk Deutschland, ­München

[5] Bundesinstitut für Bau-, Stadt- und Raumforschung (BBSR, Hrsg.): Die Auswirkungen von Building Information Modeling (BIM) auf die Leistungsbilder und Vergütungsstruktur für Architekten und Ingenieure sowie auf die Vertragsgestaltung, Eigenverlag, Berlin 2011

[6] Bayerische Ingenieurkammer-Bau: Ganzheitliches Planen und Bauen, München 2012, Download: http://www.bayika.de/de/service/publikationen

[7] Wernik, S.: BIM – Auswirkungen auf die Projektorganisation, Vortrag BIM-Anwendertreffen 2008 und Keitsch, A.: Runter von der Insel! BIM – Rollenverteilung und Abläufe im Planungsprozess, aus: DBZ 10/09, Bauverlag BV Gütersloh

[8] BIM-Handbuch: Tipps und Hinweise für die Praxis enthält das BIM-Handbuch von BuildingSmart. Es gibt Empfehlungen für den Datenaustausch mit CAD-, TGA-, CAFM-, Berechnungs- und Simulations- oder Präsentationsprogrammen. Neben einem allgemeinen, einführenden Teil enthält das Buch auch einen Anhang mit konkreten Bedienungsanweisungen für die Arbeit mit diversen CAD-Programmen. Weitere Infos und Download: http://www.bim-guide.org/index.php?id=2

Info

BIM-Glossar

BIM: Building Information Modeling. Lebens­zyklus­orien­tier­te, rechnergestützte Planungsmethode für eine optimierte architektonische, statische, energetische oder haustechnische Planung und Ausführung sowie spätere Bewirtschaftung von Gebäuden.

Little/Big BIM: Unter Little BIM versteht man den BIM-Einsatz als „Insellösung“ innerhalb eines Büros, einer Planungsdisziplin und einer Softwarelösung. Big BIM umfasst dagegen die Zusammenarbeit aller an der Planung, Ausführung und Nutzung eines Bauwerks beteiligter Partner und deren Softwarewerkzeuge unterschiedlicher Hersteller über ein gemeinsames BIM-Datenmodell.

4D/5D/6D-BIM: Wird das dreidimensionale BIM-Datenmodell um die vierte Dimension „Zeit“ erweitert (4D-BIM), kann vorab der Bauablauf visualisiert werden. 5D-BIM berücksichtigt zusätzlich auch Mengen, Baukosten und Ressourcen, womit Bau- und Montageprozesse simuliert werden können. 6DBIM berücksichtigt zusätzlich Lebenszyklusaspekte wie die Gebäudebewirtschaftung, den Abriss und die Entsorgung bzw. Materialwiederverwertung.

IFC: Industry Foundation Classes. Offener, von Buil­ding­Smart international definierter Datenstandard zur digitalen Beschreibung von BIM-Datenmodellen, inklusive aller Gebäudestrukturen und Bauteileigenschaften, um Planungsdaten zwischen unterschiedlichen Bausoftwaresystemen verlustfrei austauschen zu können.

Open BIM: Marketinginitiative von BuildingSmart und mehreren Softwareanbietern, die das offene Buil­ding­Smart-Datenmodell mit dem Ziel unterstützen, die BIM-Planungsmethode in der gesamten Baubranche weltweit koordiniert voranzutreiben.

Info

Auswahl weiterer Infos

http://www.5d-initiative.eu : 5D-Initiative von ENCORD

http://www.autodesk.de/bim : BIM-Basisinfos

http://www.bentley.com : Suchwort „BIM“

http://www.bim-guide.org : BIM-Handbuch

https://www.bim-handwerk.de/ : BIM im Bauhandwerk

http://www.bimserver.org : BIM-Modelserver

http://www.buildingsmart.de : IFC/BIM-Anwendergruppe

http://www.buildingsmart-tech.org : BuildingSmart International

http://www.graphisoft.de : BIM-Server, BIMx, OpenBIM

https://www.rib-software.com/de/ : 5D-Planung mit RIB iTWO

http://www.solibri.com : BIM-Modellverifikation

https://www.wikipedia.de/ : Suchwort „BIM“

https://www.youtube.com/?gl=DE : Suchwort „BIM“

AUTOR

Dipl.-Ing. Marian Behaneck

war nach dem Architekturstudium und freier Mitarbeit bei mehreren Architekturbüros 14 Jahre in der Dokumentation, Marketing und PR der Bausoftware-Branche tätig. Er ist Fachautor zahlreicher Publi­ka­tionen zu Hardware, Software und IT im Baubereich.