Springe zum Hauptinhalt Springe zum Hauptmenü Springe zur SiteSearch
3D-PDF: Ein neuer Standard im Baubereich?

Flexibles Datenformat

Als 1993 das Portable Document Format (PDF) eingeführt wurde – seinerzeit auch noch für DOS-PCs – war zunächst nur die Fachwelt begeistert. Konnte man doch erstmals jedes Dokument – unabhängig von der Rechnerplattform – auf jedem Monitor weitgehend genauso darstellen, wie in gedruckter Form – inklusive des kompletten Layouts, aller Schriften, Formatierungen und Umbrüche. Inzwischen nutzt die ganze Welt dieses Format, um alle Arten von Dokumenten wie Produkt- oder Unternehmensprospekte, Flyer, Datenblätter, technische Informationen oder Dokumentationen im Internet zum Download bereitzustellen oder per E-Mail in digitaler Form auszutauschen.

Angaben des Herstellers Adobe zufolge setzen mittlerweile weit über 500 Millionen Anwender weltweit den kostenlos unter http://www.adobe.com/de downloadbaren Adobe Reader zur Anzeige und zum Drucken von PDF-Dateien ein. Praktisch jeder Rechner hat den Adobe Reader (oder andere kostenfreie PDF-Viewer wie Foxit Reader oder Xpdf) mittlerweile installiert. Beste Voraussetzungen also, dass Dokumente problemlos global verteilt, betrachtet, besprochen und miteinander abgestimmt werden können.

PDF – ein Format für viele Fälle

Ähnlich wie die verwandte Seitenbeschreibungssprache PostScript, ein weiteres von Adobe für die Druckbranche entwickeltes Standardformat, beschreiben PDF-Dokumente den exakten Aufbau einer Druckseite. Dokumente des Ursprungsprogramms werden einschließlich aller Zeichensätze („Schriftarten“), Farben, Raster- und Vektorgrafiken sowie des Original-Layouts originalgetreu wiedergegeben. Texte – und für den Baubereich noch wichtiger – Vektorgrafiken (CAD-Pläne) können ohne Qualitätsverlust nahezu beliebig vergrößert und verkleinert werden (10 %–6400 %). Auch kleinste Details lassen sich zoomen, ohne dass – wie bei Rasterformaten üblich – bei schräg verlaufenden Linien, Kreisen oder Kurven ein „Treppeneffekt“ entsteht. Texte können auf bestimmte Inhalte durchsucht werden. Textpassagen, Tabellen, Grafiken und Bilder lassen sich per Cut & Paste in andere Programme einfügen und weiterverarbeiten, sofern dies beim Generieren der Datei nicht explizit ausgeschlossen wurde. PDF-Dokumente können eine oder mehrere hundert Seiten umfassen und ein maximales Seitenformat von 36 × 36 m aufweisen. Damit lassen sich auch extrem großformatige Bauleitpläne, städtebauliche Pläne, Werk- oder Detailzeichnungen im Maßstab 1:1 problemlos in einer PDF-Datei abbilden.

PDFs erstellen, lesen und bearbeiten

Erstellt werden PDF-Dokumente mit kostenpflichtigen Programmen wie dem Adobe Acrobat, der in drei unterschiedlichen Varianten und Funktionsumfängen angeboten wird (Standard, Pro und Pro Extended). Alternativ lassen sie sich mit kostenloser Freeware wie FreePDF, PDFCreator etc. – oder mit CAD-, EnEV-, AVA- oder FM-Software generieren, die über einen entsprechenden PDF-Export verfügen. Damit vertrauliche Informationen und geistiges Eigentum nicht in unbefugte Hände geraten, ist es außerdem erforderlich, dass Inhalte zuverlässig geschützt werden. Durch Vergabe eines Passwortes können PDF-Dokumente relativ wirkungsvoll geschützt und nur einem ausgewählten Personenkreis, etwa allen Projektbeteiligten, zugänglich gemacht werden. Ebenso können beim Generieren bestimmte Rechte wie das Drucken, Kopieren oder Ändern von Inhalten eingeschränkt werden.

Sensible Inhalte lassen sich durch Schwärzen dauerhaft aus den Projektunterlagen entfernen. Rechtsgültige, digitale Signaturen verhindern zudem unbefugte Änderungen und sichern die Authentizität eines Dokuments. Alle einmal definierten Sicherheitseinstellungen sind speicherbar und können auf andere PDF-Dateien übertragen werden. Konnte man zunächst Kommentare oder Notizen lediglich mit Adobe Acrobat erstellen, ist dies seit der Version 7 auch mit dem kostenlosen Adobe Reader möglich. Allerdings müssen vom Autor in der PDF-Datei entsprechende Rechte freigeschaltet worden sein. Die PDF-Dateigröße ist abhängig vom Umfang und Inhalt der Ursprungsdatei sowie von der beim Generieren einstellbaren Komprimierungsstufe. Mit hoher Komprimierungsstufe erstellte Dokumente sind zwar klein, jedoch ist auch die Wiedergabequalität relativ gering. Umgekehrt verfügen voluminöse Dokumente mit niedriger Komprimierung über eine sehr gute Qualität. Welche Einstellung gewählt wird, hängt vom Einsatzzweck ab. Da das PDF-Format mittlerweile für die Darstellung im Internet optimiert wurde, lassen sich auch großformatige Pläne, Flyer, Prospekte oder sogar umfangreiche Produktkataloge relativ flott auf der eigenen Unternehmens-Homepage online abbilden.

Welche Vorteile bietet PDF in der Praxis?

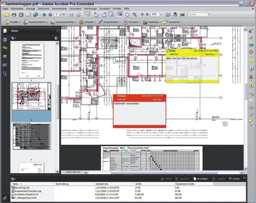
Die Prüfung, Kommentierung und Freigabe von Plänen oder das Bearbeiten von Dokumenten gehören zum Alltag. Ob Architekten, Fachingenieure, Energieberater, Bauphysiker oder Gutachter – alle arbeiten sie mit unterschiedlichen Systemen häufig an ein- und demselben Projekt. Aufgrund fehlender Schnittstellenstandards erschwert dies die Zusammenarbeit und Kommunikation. Dies ist mit ein Grund, weshalb sich das PDF-Format in der Bauwelt relativ schnell als digitales Verteilungsmedium für Ausschreibungen, Berichte, Gutachten, Angebote, Entwürfe, Pläne oder Zeichnungen etablieren konnte. Bietet es doch für diesen Zweck viele Vorzüge: Pläne können beliebig vergrößert, Zeichnungsebenen (Folien, Layer) ein- oder ausgeschaltet werden, Notizen und Kommentare eingefügt oder in Ausschreibungen bestimmte Textinhalte gesucht werden. Alleine die Korrektur- und Notizfunktionen, „Redlining“ genannt, bieten vielfältige und in der Praxis sehr nützliche Korrekturmöglichkeiten: Mit grafischen Elementen wie Linien, Pfeilen, Bögen, Rechtecken, Freihandlinien, „Wolken“ oder „Haft-Notizen“ können an jener Stelle eines Dokuments Kommentare oder Notizen eingefügt werden, an der Änderungen vorgenommen werden sollen. Zu jedem Kommentar wird automatisch Benutzername, Datum und Uhrzeit gespeichert, damit Rückfragen möglich sind. Das Messwerkzeug berechnet Längen oder Flächen und exportiert diese auf Wunsch in Excel, womit sich Massen und Mengen für die Ausschreibung von Bauleistungen ermitteln lassen. Interaktive Formulare erweitern die Möglichkeiten von PDF-Dateien zusätzlich. Auch Ausschreibungen oder Angebotsanfragen können als PDF-Format exportiert, mit dem Adobe Reader ausgefüllt und wieder elektronisch eingelesen werden.

Der wichtigste Vorteil: man benötigt für die Darstellung der Dokumente weder ein teures Fachprogramm, noch spezielle Viewer oder Reader. So können beispielsweise Architekten eigene oder fremde Pläne markieren, kommentieren und per E-Mail an Fachingenieure, Handwerker oder Bauherren versenden – oder sie stellen sie in Internet-basierenden Projektmanagement-Systemen (IBPM) für Projektpartner zum Download bereit. Vorteilhaft ist dabei, dass insbesondere beim Export von 3D-PDF-Daten teilweise hohe Komprimierungsfaktoren erzielt werden können. Zudem können Inhalte aus unterschiedlichen Quellen (Pläne, Berechnungen, Produktkataloge, Web-Seiten etc.) in einem einzigen PDF, quasi als „Sammelmappe“, zusammengeführt werden. Das ermöglicht eine durchgängig auf digitalen Projektdaten basierende Projektablage. Auch die Projektdokumentation und Archivierung wird gegenüber der bisher üblichen digitalen Archivierung im TIFF-Format – und erst recht gegenüber konventionellen Papierplanarchiven – erheblich einfacher und platzsparender: Abgeschlossene Projekte, unterschiedliche Planversionen, Verträge etc. lassen sich insbesondere mit der ISO-zertifizierten Formatvariante PDF/A langfristig archivieren.

Acrobat „hoch 3“

Bereits seit 2006 ist Adobe Acrobat 3D verfügbar. 3D-PDFs ermöglichen Projektteams, 3D-Daten schnell, sicher und effizient zu verteilen und mithilfe des Adobe Reader (ab Version 7.07) abzustimmen. Zahlreiche CAD- und Grafikformate können mittlerweile in Acrobat 3D importiert werden, um sie plattform­übergreifend zu visualisieren, darunter DWG, DXF, 3DXML oder das IFC-Format (aktuelle Liste: http:// http://www.adobe.com/devnet/acrobat/pdfs/95011063_acro9_proex_ds_ue.pdf ). Mit dem IFC-Format können die komplette Gebäudestruktur in 3D-PDF übernommen und alle Bauteilattribute angezeigt werden.

Führende Anbieter von CAD-Software, wie Autodesk, Bentley, Graphisoft, Solidworks oder Nemetschek unterstützen 3D-PDF. Bei vielen anderen Programmen ist diese Funktion in Vorbereitung. Aufgrund der Marktposition von Adobe und der Verbreitung des kostenfreien Readers hat 3D-PDF durchaus das Zeug, zu einem neuen Kommunikationsstandard für 3D-Daten zu werden. Damit können externe Projektpartner oder auch Laien an der digitalen Besprechung von 3D-Konstruktionen teilhaben, was die Projektkommunikation verbessern und Entscheidungen beschleunigen kann. Wird das PDF-Dokument mit Acrobat 9 Pro entsprechend freigeschaltet, können die Partner zusätzlich Kommentar-, Mess- und Schnittwerkzeuge für die Darstellung von Grundrissen oder Schnitten nutzen. Acrobat Pro Extended ermöglicht zudem, 3D-Objekte in PDF-Dokumenten interaktiv zu gestalten und die Struktur von Objekten zu visua­lisieren. So lässt sich die Beleuchtung anpassen, das Material eines Objekts bestimmen oder eine Animation erstellen. Auch die Funktion beweglicher Teile ist simulierbar, ebenso wie der Ablauf einer Montage. Ferner können einzelne Bauteile oder Bauteilgruppen eines komplexen Objektes gezielt ein-, aus- oder transparent geschaltet werden. Kleiner Wermutstropfen am Rande: in vielen Details entspricht die Bedienung und Eingabelogik nicht unbedingt der Denkweise von Bauplanern – etwa bei der Definition der Schnitthöhe.

Wo liegen die Grenzen?

PDF ist unbestritten ein ideales Format für die plattformübergreifende Verteilung zwei- und dreidimensionaler Projektdaten an unterschiedliche Stellen. Für die Abstimmung der Unterlagen müssen die Parteien nicht in Zusatzsysteme investieren. Jeder Projektbeteiligte kommentiert oder markiert entsprechend aktivierte PDF-Dokumente mit dem kostenlosen Adobe Reader und leitet sie per E-Mail zeitsparend weiter. Freigabeprozesse nehmen ohne Versandzeiten und kostspielige Kurierfahrten nur noch einen Bruchteil der ursprünglichen Zeit in Anspruch. Dennoch gibt es Grenzen: 3D-PDF ist kein Austauschformat wie DXF, DWG oder gar IFC. Ein Reimport von 3D-PDF in CAD-Programme ist auch kaum sinnvoll, weil schon beim Export Informationen verloren gehen. Zwar lassen sich 3D-CAD-Modelle als 3D-PDF-Dateien exportieren und visualisieren. Wird diese Datei jedoch wieder importiert, erhält man Objektflächen anstelle von 3D-Volumenmodellen mit den entsprechenden Objektinformationen. Das gilt in ähnlicher Weise auch für 2D-Daten. Vom Planer in die PDF-Datei eingetragene Korrekturen und Notizen werden deshalb vom Bauzeichner in der Regel nur „analog“ gelesen und dann „digital“ umgesetzt. Wer hier mehr Durchgängigkeit erwartet, ist mit den ebenfalls mit Redlining-Funktionen ausgestatteten, herstellerspezifischen CAD-Viewern, die teilweise auch kostenfrei offeriert werden, besser bedient. Doch die haben längst nicht die Verbreitung und die Möglichkeiten des PDF-Formats. Nicht nur CAD-Viewer stehen in Konkurrenz zum neuen 3D-PDF, auch beispielsweise das 3D-XML-Format von Dassault Systems, einem renommierten Hersteller von CAD-Systemen, verfügt über ähnliche Möglichkeiten. Allerdings hat Adobe aufgrund der enormen Verbreitung des Adobe Readers langfristig wohl die besseren Karten …

Marian Behaneck, Jockgrim

INFO

Steckbrief Adobe Acrobat

Die aktuelle Acrobat-Produktfamilie besteht aus dem kos­tenfreien Acrobat 9 Reader sowie den kostenpflichtigen Versionen Standard, Pro und Pro Extended. Mit Acrobat 9 Pro Extended können über 40 verschiedene 3D-CAD-Formate in 3D-PDF-Dokumente umgewandelt werden. Neu ist die Möglichkeit, das 3D-Gebäudemodell im IFC-Format in ein 3D-PDF-Dokument umzuwandeln, welches die komplette Gebäudestruktur und attributive Bauteildaten enthält. Eine gute Übersicht der Neuerungen enthält die Adresse: http://www.adobe.com/de/products/acrobat . Dort finden Sie unter der Rubrik „Die Acrobat 9-Produktlinie im Vergleich“ auch eine tabellarische Zusammenstellung der Funktionsunterschiede der einzelnen Versionen. Acrobat 9 Pro Extended kostet ab 819 Euro, registrierte Anwender von Acrobat 8.0 Professio­nal erhalten das Upgrade ab 269 Euro (jeweils zuzüglich Mehrwertsteuer).

Weitere Infos

http://www.video.google.de Videos, Suchwort: „3D-PDF“

http://www.adobe.com/de/products/acrobat Infos zu Acrobat

http://www.pdfzone.de PDF-Informationsportal

https://www.wikipedia.de/ Grundlagen, Suchwort: „PDF“

https://www.webpdf.de/ Online PDF-Konvertierung

Tags