Springe zum Hauptinhalt Springe zum Hauptmenü Springe zur SiteSearch
Lignotrend 

Voll im Trend – made of Ligno

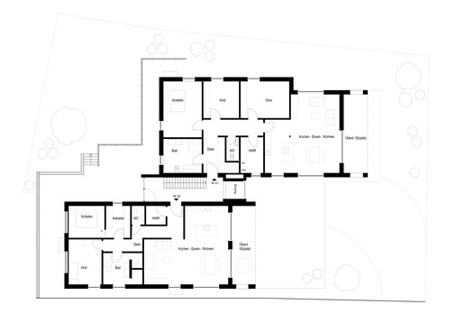
Gründe, um mit Holz zu bauen, gibt es bekanntlich zuhauf. Der Rohstoff aus dem Ökosystem Wald bindet nicht nur CO2, sondern er ermöglicht Bauten mit deutlich günstigerer Primärenergiebilanz als beispielsweise solche aus Ziegel oder Beton. Diese Argumente überzeugten auch zwei Familien aus Nürtingen-Reudern, die sich für den Neubau zweier Klimaholzhäuser „made of Ligno“ entschieden, dem 1995 von Lignotrend gegründeten Netzwerk aus Architekten und qualifizierten Holzbaubetrieben. Obwohl alle Klimaholzhäuser aus im Lignotrend-Werk vorgefertigten, massiven Brettsperrholz-Elementen bestehen, sind sie keineswegs Fertighäuser, sondern stets von Architekten individuell geplante Gebäude. So auch die beiden Mehrfamilienhäuser in Nürtingen. Mit der detaillierten CAD-Planung auf Basis des Entwurfs der Projektarchitektin Ann-Kathrin Stolz von Gerhard Stolz Architekten & Ingenieure aus Neidlingen war die präzise Grundlage für die Herstellung der Brettsperrholz-Rippen- und Kas-
tenelemente im Lignotrend-Werk geschaffen. Die Vormontage der Bauteile fand in der eigenen Zimmerei der Baufamilien Krämer statt: Die geschosshohen Einzelelemente wurden zusammen mit Schwellen und Rähm zu kompletten Wandbauteilen vormontiert und mit allen Öffnungen und Details versehen. Nur fünf Tage dauerte das Aufrichten der beiden versetzt zueinander positionierten Holzhäuser. Auf das konventionell betonierte Kellergeschoss mit Tiefgarage wurde entlang der Straße ein langgestrecktes Holzhaus mit durchgehendem Satteldach und homogener Fassade aus Faserzementplatten errichtet. Dahinter folgt das dreigeschossige Flachdachgebäude mit weiß verputzten Außenwänden, das nur in Teilen die graue Fassadenbekleidung aufnimmt. Beide Gebäude verbindet eine nach Norden und Süden verglaste Erschließungsspange mit Treppenhaus und gläsernem Aufzug. Die Energieversorgung des Wohnensembles im KfW-40-Standard sichern eine Sole-Wärmepumpe auf dem Grundstück und eine PV-Anlage auf dem Dach. Die insgesamt fünf Wohneinheiten sind zwischen 99 und 167 qm groß. Die Lignotrend-Deckenbauteile zeigen durchgehend ihre endfertigen Echtholzoberflächen in heller, astfreier Weißtanne. Aus den Stämmen dieser im Schwarzwald heimischen Tanne wird in einem besonderen Einschnitt- und Weiterverarbeitungsverfahren das Rohmaterial für die Sichtoberflächen gewonnen. Die Verarbeitung zu astfreien Qualitäten ist eine Spezialität von Lignotrend: Aststellen werden in der Fertigung ausgekappt und die Abschnitte zu hochwertigen Lamellen zusammengesetzt. So entsteht eine besonders edle Holzoberfläche, die eine moderne, elegante und besonders leicht wirkende Holzbau-Architektur ermöglicht – frei von jeglicher Rustikalität. Lignotrend Brettsperrholz ist übrigens für seine baubiologische und ökologische Qualität nach natureplus zertifiziert. Die Bauteile sind frei von Schwermetallen und halten bzgl. der Begrenzung von Formaldehyd und anderer organischer Verbindungen (VOC) Emissions-Grenzwerte ein, die weit über die gesetzlichen Anforderungen hinausgehen. Damit gehören sie offiziell zu den umweltverträglichsten und gesundheitlich unbedenklichsten Baustoffen in Europa. Die Klimaholzhaus-Bauweise ist diffusionsoffen, was einen perfekt regulierten Feuchtehaushalt ermöglicht. Außerdem wirkt das raumklimawirksame Massivholz der Lignotrend-Elemente in der kalten Jahreszeit trockener Raumluft entgegen, indem die im Sommer gespeicherte Luftfeuchte im Winter auf natürlichem Wege wieder nach innen abgegeben wird. Da die Ansprüche in Sachen Schallschutz in den vergangenen Jahren deutlich gestiegen sind, orientiert sich Lignotrend beim Aufbau seiner Trenndecken und Trennwände diesbezüglich nicht an der DIN, die nur Mindestanforderungen erfüllt, sondern am vom Informationsdienst Holz definierten Höchststandard „Komfort“, der auch die Minimierung der tieffrequenten Geräuschübertragung fordert. Und so trennen die Geschossdecken „made of Ligno“ bei den beiden Mehrfamilienhäusern die Wohneinheiten auf höchstem Schallschutzniveau – für eine auch hörbar bessere Wohnatmosphäre. si