Seit Mai 2009 verlangt die DIN 1946-6, dass für jeden Neubau und jedes umfänglich sanierte Gebäude ein Lüftungskonzept entsprechend der Norm erstellt werden muss.
Lüftungssysteme werden hier in freie und ventilatorgestützte Lüftungssysteme unterteilt, eine Kombination ist noch nicht definiert. In der Verordnung der seit März 2018 neuen Bundesregierung stehen jedoch auch wieder zentrale Forderungen wie das energieeffiziente Bauen und eine möglichst dichte Gebäudehülle. Auch wurde die DIN 1946-6 überarbeitet und steht mit u.a. folgenden Veränderungen in den Startlöchern:
 
    - Umstrukturierung der Abschnitte der Norm: die Abschnitte 4, 5 und 6 zum Lüftungskonzept gelten für alle Systeme. Der Abschnitt 7 beinhaltet Anforderungen an freie Wohnungslüftungssysteme, Abschnitt 8 für ventilatorgestützte Systeme, der neue Abschnitt 9 für die Kombination von beiden Systemen in einer Einheit.
- Abgleich der Anforderungen an die hygienische Ausführung von Wohnungslüftungssystemen
- Überarbeitung der Beiblätter 3 und 4 in Hinblick auf den Betrieb von Feuerstätten und Lüftungsanlagen
- Neuer Anhang Kellerlüftung
- Anforderungen der Ecodesign-Richtlinie an Geräte zur Wohnungslüftung
 
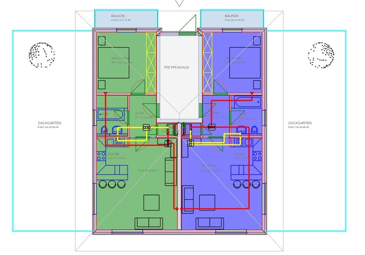
    Mit der Softwarelösung „ Lüftungsplaner 3D PLUS “ von Hottgenroth kann der Anwender bereits heute ein konkretes Lüftungskonzept und eine Lüftungsanlage für eine Wohnung oder ein Gebäude planen und so den aktuellen und zukünftigen Anforderungen gerecht werden.
