Springe zum Hauptinhalt Springe zum Hauptmenü Springe zur SiteSearch
Fassadensanierung eines denkmalgeschützten Hochhauses

Von oben nach unten

Das ehemalige Mona-Hochhaus in der Karlsruher Südstadt zählt zu den neueren baugeschichtlichen Kulturgütern der badischen Metropole. In den Jahren 1958–1960 vom Architekturbüro Backhaus & Brosinsky erbaut, steht der einstige Stammsitz des Versandhandelsunternehmens für Damenmode inzwischen unter Denkmalschutz. Bereits 1985 wurde die Klei­derfertigung der Mona geschlossen, und es zogen andere Nutzer in das achtgeschossige Hochhaus mit seiner filigranen Fassade, die als typischer Vertreter der Büroarchitektur der 1960er-Jahre gilt. Abgesehen von dem hohen Energieverbrauch im Gebäude machten auch die zahlreichen Wärmebrücken an der Pfosten-Riegel-Konstruktion sowie den Fenstern an den Stirnseiten eine energetische Sanierung unabdinglich. Zumal die 1350 m 2 große Holz-Aluminium-Konstruktion längst nicht mehr heutigen Komfortanforderungen entsprach und die Spuren der Abnutzung und des Verschleißes unübersehbar waren.

Fassadenaustausch bei laufendem Betrieb

Die beauftragte Firma Freyler Metallbau, ebenfalls in Karlsruhe ansässig, sah sich durch den kompletten Austausch der Fassade bei laufendem Betrieb vor eine große Herausforderung gestellt. Die Spezialisten für Fassadenbau übernahmen Planung, Fertigung, termingenaue Logistik und die Montage der Fassade.

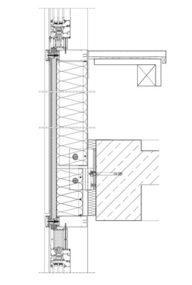
Aufgrund der Anforderungen seitens des Denkmalschutzes musste die Fassadenkonstruktion in ihrer Geometrie und Farbigkeit erhalten bleiben. Gemeinsam mit dem Hersteller Raico wurde daher ein Sonderprofil entwickelt, um die ursprünglichen Fassadenprofile originalgetreu nachzubilden. FRAME+ 75 WI-Sonderprofile wurden als dreifach verglaste Einsatzelemente in die Fassade integriert.

Rein optisch entspricht die neue Fassade jetzt genau dem früheren Vorbild und erfüllt damit in allen Punkten die Vorgaben des Denkmalschutzes. In energetischer Hinsicht unterscheiden sich die Aluminium-Fassadenmodule jedoch deutlich von ihrem historischen Vorgänger: Mit einem U-Wert von 0,8 bis 1,1 W/(m 2 K) – je nach Bauteil – bieten die Fassadenprofile einen optimalen Wärmeschutz und lassen die einstigen Wärmebrücken in Vergessenheit geraten. Auch die Verglasung dämmt heute winters wie sommers mit einem U g -Wert von 0,5 W/(m 2 K) in einer ganz anderen Liga.

Etappenweise Montage, kurze Bauzeit

Die Montage der Fassadenelemente fand von oben nach unten statt, um parallel zum Baufortschritt gleich das Gerüst abbauen zu können und so schnell wie möglich wieder einen ungestörten Büroalltag zu gewährleisten. Zudem wechselten die Montagetrupps für die De- und Neumontage immer von der Vorder- zur Rückseite, sodass die Nutzung aufrechterhalten werden konnte und die Mitarbeiter nur für kurze Zeit von der einen zur anderen Seite der Etage umziehen mussten.

In mehreren Etappen ersetzte Freyler Metallbau so innerhalb von nur drei Monaten die jeweils etwa 4,5 m 2 großen, alten Holz-Aluminium-Fassadenelemente durch die neuen Aluminiumfassadenmodule. Sämtliche Elemente, die im Laufe des Tages ausgebaut wurden, mussten bis zum Abend durch neue ersetzt werden. Ein Vorteil für den schnellen Austausch lag in der durchlaufenden Dichtung für das Entwässerungssystem der Pfosten-Riegel-Konstruktion, die nahtlos über alle Etagen hinweg verwendet werden konnte.

Neben der Pfosten-Riegel-Konstruktion tauschte die Metallbaufirma auch andere Verglasungen am Gebäude aus. So wurden an den Stirnseiten neue Dreh-Kipp-Schwingfenster eingebaut und die Verbindungsbrücke von dem Anbau aus dem Jahr 1966 zum Nachbargebäude erhielt ebenfalls neue Fensterelemente. Die nicht transparenten Bereiche wurden gedämmt und mit einer neuen Fassadenbekleidung versehen.

So blieb der Fächerstadt Karlsruhe ein wichtiges architektonisches Dokument der Neuzeit erhalten, das beim 300-jährigen Stadtgeburtstag im Jahr 2015 mit zu den Juwelen der Stadtbaugeschichte gehören wird. https://www.freyler.de/

Bautafel

Bauherr: J. und A. Kohm, Augartenstraße 1, 76137 Karlsruhe

Fertigstellung der Sanierung: Sommer 2012

Bauzeit (Sanierung): 3 Monate

Fassade: 1350 m 2 Aluminium-Pfosten-Riegel-Konstruktion

U-Wert: ca. 0,8 bis 1,1 W/(m 2 K) (je nach Bauteil)

Ug-Wert Verglasung: 0,5 W/(m 2 K)